Koje 6
Gala
Details
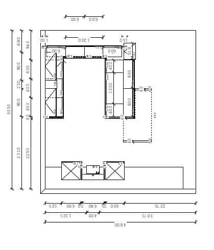
Wenn Sie sich fragen, wie eine ergonomische Küche aussehen kann, dann ist unsere Design U-Küche genau das richtige Beispiel. Die vom Küchenhersteller Schüller stammende Designküche ist so konzipiert, dass der größte Teil der U-Form offen in den Raum hineinragt, wodurch sogar die Schränke an der Außenseite der U-Küche nutzbar sind. Viel Stauraum ist hier somit…
Hersteller: Schüller Küchen
Model: Gala
Grundriss:
